montage5.jpg
montage4_nightshot.jpg
SITE PLAN
PRECEDENT
GROUND FLOOR
FIRST FLOOR
SECOND FLOOR
SECTION BB - Copy.jpg
SECTION CC - Copy.jpg
SECTION AA - Copy.jpg
130425 ESD.jpg
AL 04 01 EAST ELEVATION (WARRANT) opt O A3 landscape (1) - Copy.jpg
AL 04 01 WEST ELEVATION (WARRENT) opt O A3 presentation (1) - Copy.jpg
SOUTH ELEVATION O - Copy.jpg
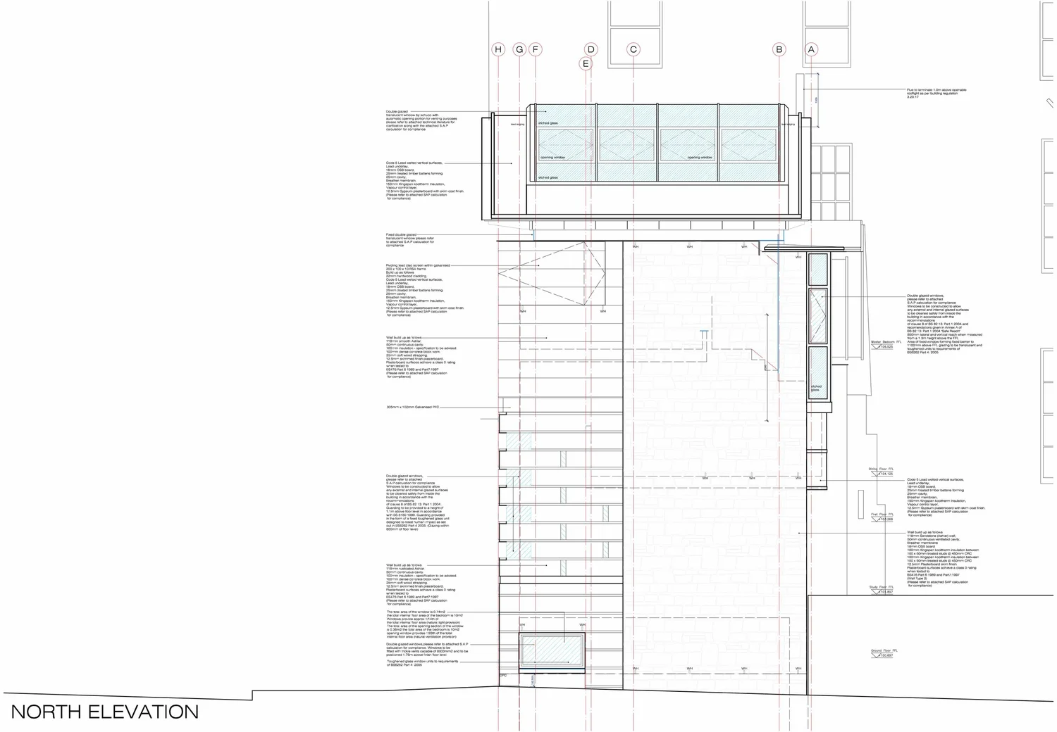
NORTH ELEVATION O - Copy.jpg
East-Elevation-1-100.jpg
IMGP9814.JPG
prev / next