AERIAL CUNNINGHAM_SITE HIGHLITE.jpg
140917_STREET PERSPECTIVE.jpg
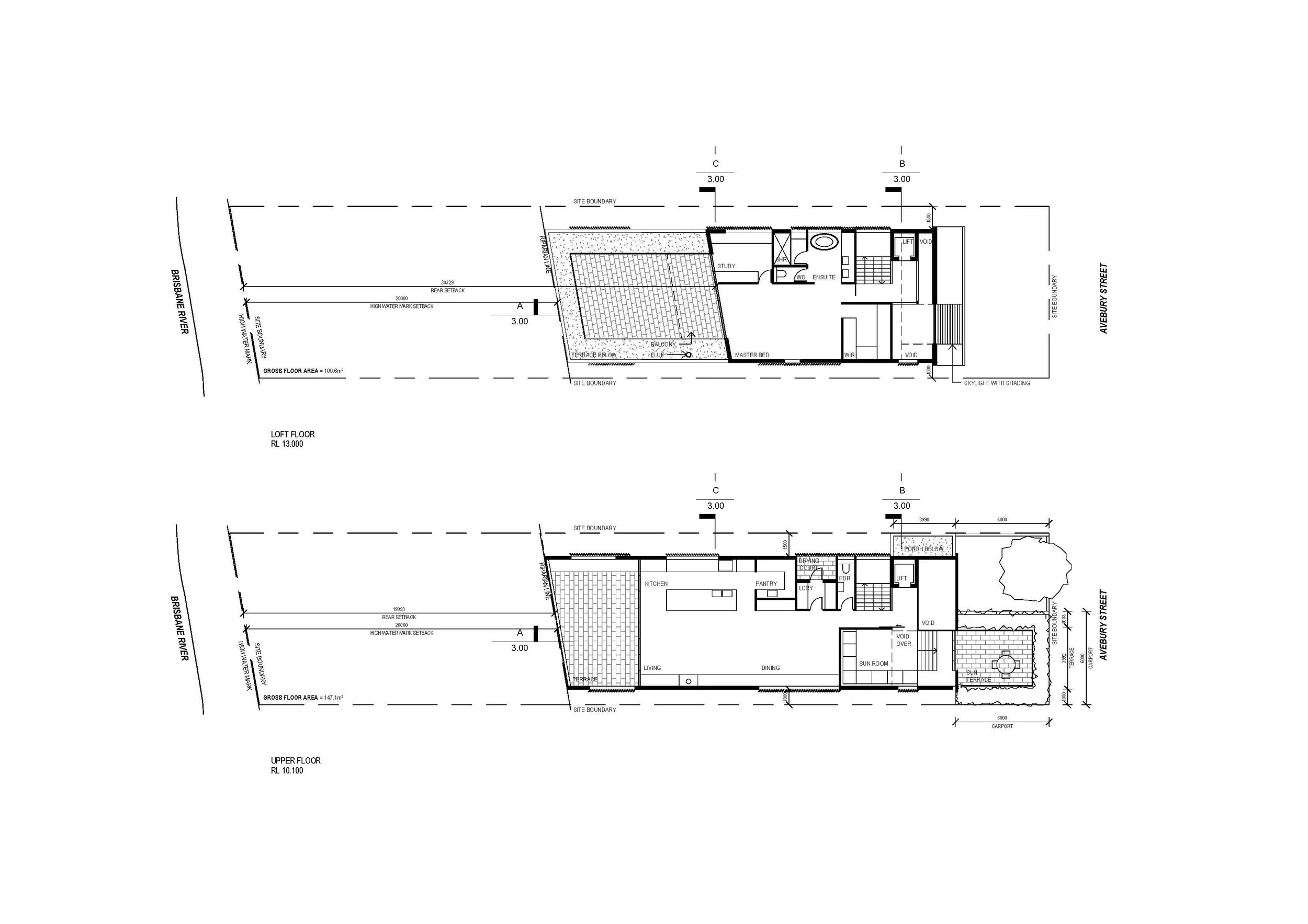
PLANS 01.jpg
PLANS 02.jpg
ELEVATION 01.jpg
ELEVATION 02.jpg
prev / next